GARCHES - Dernier étage avec deux terrasses - vue sur Paris
Je propose à Garches un bien situé au 4ᵉ et dernier étage d’une résidence récente et bien entretenue, ce bel appartement familial de 129,10 m² Loi Carrez offre un cadre de vie calme, lumineux et privilégié, avec deux grandes terrasses de plain-pied et une vue sur la Tour Eiffel.
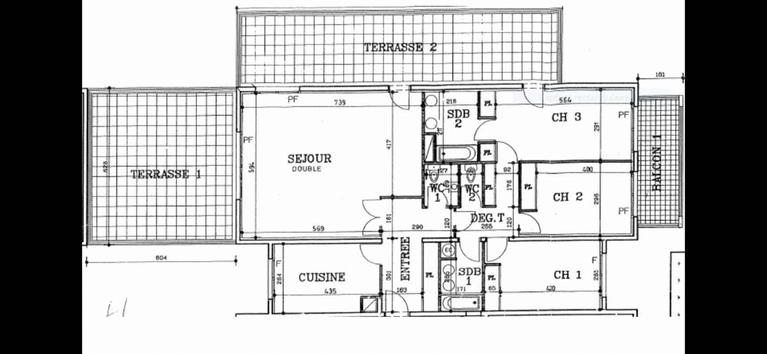
L’appartement se compose d’une entrée avec placard, d’un vaste salon et d’une salle à manger baignés de lumière ouvrant directement sur les terrasses, d’une cuisine équipée, ainsi que d’un
w-c invités.
L’espace nuit comprend une suite parentale avec salle de bains et douche, bénéficiant également d’un accès direct à la terrasse, une seconde chambre, une autre salle de bains et un second w-c indépendant. La configuration actuelle permet aisément la création d’une troisième chambre selon les besoins.
Les terrasses, accessibles depuis les pièces de réception et la chambre principale, permettent de profiter pleinement d’un extérieur rare pour ce type de bien, avec une vue dégagée incluant la Tour Eiffel.
Une cave et un emplacement de parking complètent ce bien.
L’appartement bénéficie d’un emplacement recherché, à proximité immédiate des golfs de Saint-Cloud, Des commerces de proximité, du Collège Henry Bergson, ainsi que de plusieurs lignes de bus facilitant les déplacements.
Un bien rare par son dernier étage, ses terrasses et sa vue sur la Tour Eiffel.
Prix : 920 000 €
Béatrice BERNIER
06 62 24 45 62
b.bernier@agencebeatricebernier.fr
INFORMATIONS GÉNÉRALES
Type de bien : appartement
Nombre pièces : 4
Chambre(s) : 2 - possibilité 3
Salle(s) de bain : 2
Salle(s) d’eau : /
WC : 2
Type chauffage : individuel
Mode chauffage: électrique
Cuisine : Équipée
Séjour double : Oui
Code postal : 92380
Ville: Garches
Étage : dernier étage
Nombre étages : 4
Bien en copropriété : oui
Nombre lots copropriété: 44
Dont lot d’habitation : /
Charges annuelles (ALUR) : 2 900 €
Procédures diligentées c/ syndicat de copropriété : Non
Surface: 129,10m²
Surface loi Carrez : 129,10m²
Surface séjour : 40,10m²
Surface terasses : 34.93m² et 37,25m²
Surface terrain : /
ASPECT FINANCIER
Prix : 920.000 €
Honoraires acquéreurs inclus
DIAGNOSTICS
Concerné par un Etat des Risques de Pollutions (ERP) : Oui
Date d’établissement (ERP) : 19/04/2024
Diagnostic Carrez : 129,10m²
Diagnostic Amiante : Non
Diagnostic Parasitaire : Oui
Diagnostic Électrique : Oui
Diagnostic Perf. Numérique : D
Diagnostic Gaz : D
Date diagnostic Gaz : 19/04/2024
Soumis à l’affichage du DPE : Oui
Date établissement Diagnostic Énergétique : 19/04/2024
Consommation énergie primaire : D
Consommation énergie finale : D
Valeur consommation énergie finale : 244 kWh/m²/an
Valeur consommation énergie primaire : 244kWh/m²/an
Gaz à Effet de Serre : D
Valeur Gaz à Effet de Serre : 8Kg CO2/m²/an
Montant maximum estimé des dépenses annuelles d’énergie pour un usage standard : 2 620 €
Montant minimum estimé des dépenses annuelles d’énergie pour un usage standard : 1 900 €
Classe énergie : D244kWh/m²/an
GES : D8
Vous souhaitez en savoir plus
Béatrice BERNIER
06 62 24 45 62
b.bernier@agencebeatricebernier.fr

